Apartment:

10 - Campo San Rocco

Address: Campo San Rocco 4 - Area: Grado Centro

Rooms: 5 - Type: - Ipe: 0

Description

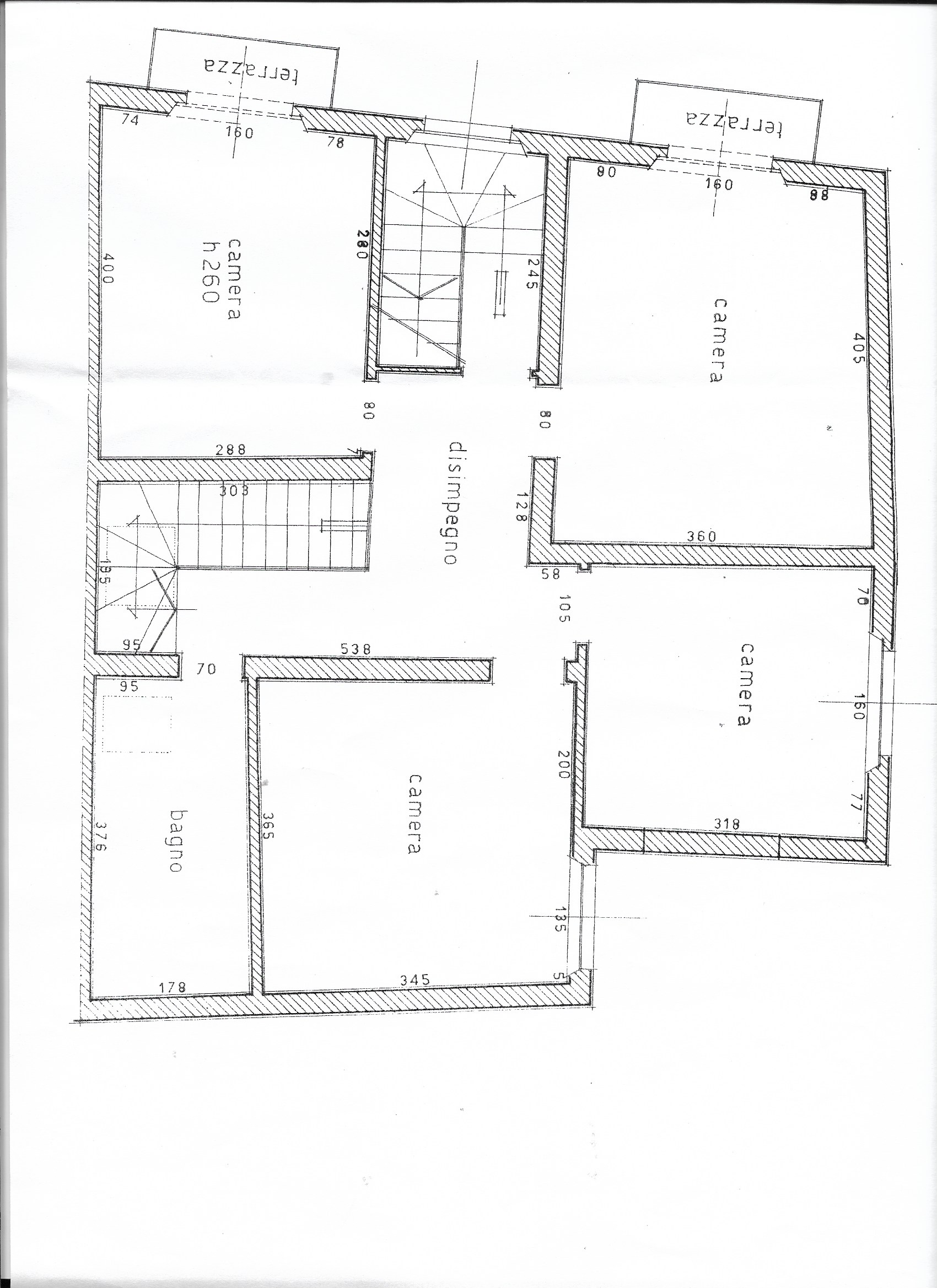
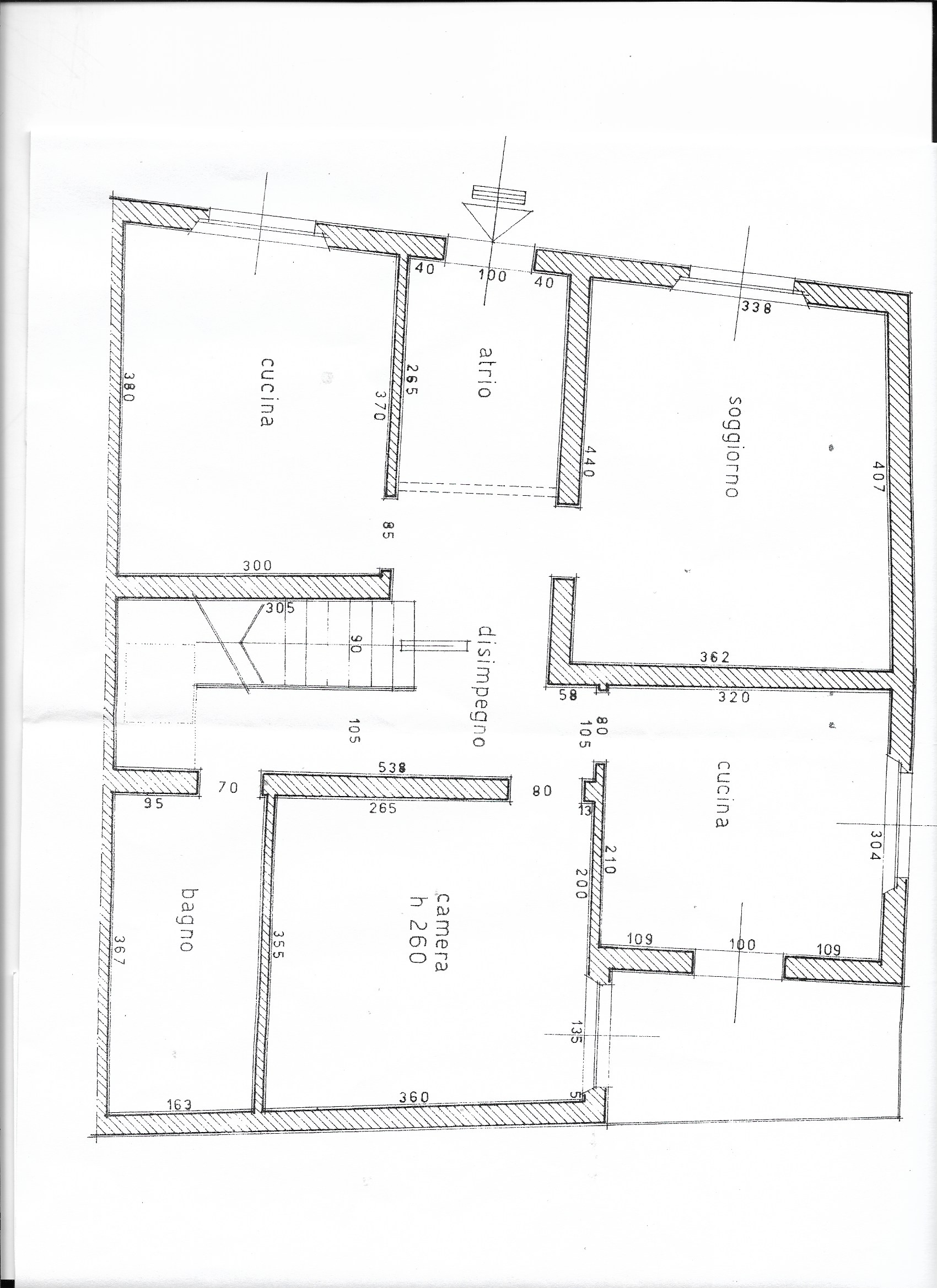
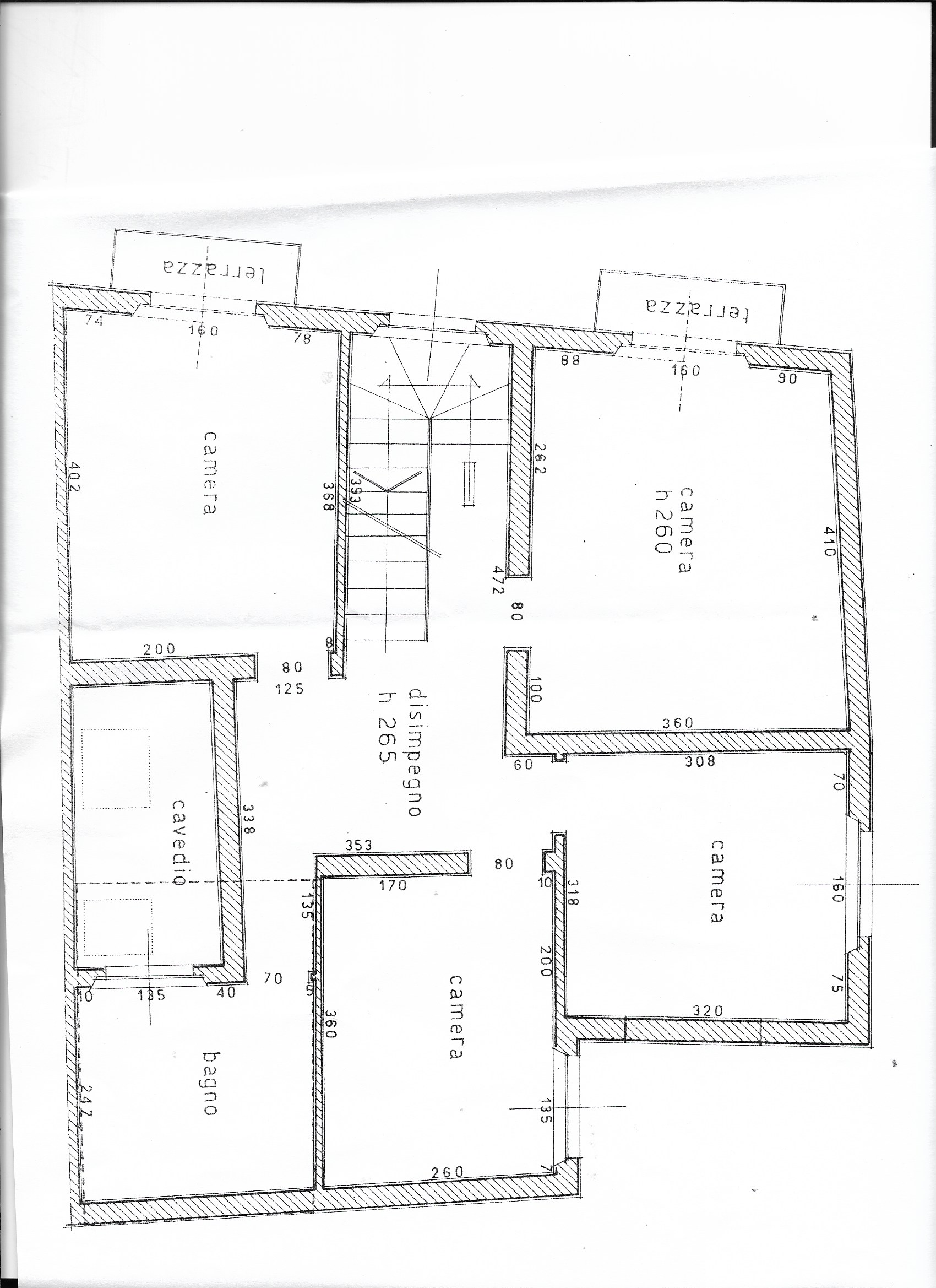
In an exclusive location in Grado, we offer for sale a spacious terraced house spread over three levels, ideal both as a private residence and as a hospitality property. On the ground floor, there are an entrance, living room, two kitchens, a bedroom, a bathroom, and an internal courtyard—bright and functional spaces that ensure optimal livability. The property offers an additional 9 large bedrooms and 3 bathrooms, ensuring maximum flexibility in the layout and numerous possibilities for customization. On the top floor, there is a large attic, perfect as a suite or multifunctional space, with access to a private terrace that provides extra privacy and an exclusive outdoor area. The property is also enhanced by 4 panoramic terraces with stunning sea views and a unique outlook over the historic center of Grado, with picturesque views of the Basilica and the characteristic bell tower. A rare solution of its kind, perfect for those seeking charm, spaciousness, and a welcoming setting of great value. PRICE € 900,000.00


Informations Request
Conditions of Lease

| L'immobiliare a Grado || Tel. 0431/876330 - P.IVA 00541830311 |

Copyright © Photo 2019 by Nico Gaddi - La Botega - Via Gradenigo, 19 - Grado - Italy - info@nicogaddi.it

Copyright © Hi-System 2018

Agency hours
#Morning fromtoafternoon fromto
Monday09:3012:3015:3018:30
Tuesday09:3012:3015:3018:30
Wednesday09:3012:3015:3018:30
Thursday09:3012:3015:3018:30
Friday09:3012:3015:3018:30
Saturday09:3012:30CHIUSOCHIUSO
SundayCHIUSOCHIUSOCHIUSOCHIUSO
Legal Information

L'immobiliare a Grado S.r.l

Viale Europa Unita n° 9 Grado (GO)

Numero REA: GO-61721

iscritta nel Registro delle imprese di Gorizia al numero e codice fiscale 00541830311

capitale sociale € 21.000,00 interamente versato

amministratore unico: Zentilin Ondina

Iscrizione Ruolo Mediatori C.C.I.A.A. di Gorizia della Soc. n° 362

Iscrizione Ruolo Mediatori C.C.I.A.A. di Gorizia del legale rappresentante (Zentilin Ondina) n° 515

Contacts

Object: Information Request for the period from

to

Sent your message successfully!

Error

Sorry there was an error sending your form.
Aggiungi Fascia Prezzo
Modifica Settimane
Aggiungi Fascia Prezzo
Posizione
Contacts

Object: Information Request for the apartment 10 - Campo San Rocco

Sent your message successfully!

Error

Sorry there was an error sending your form.
Condition of Lease

- No services of any kind are provided during the period of the lease.The apartment is ceded under lease fully equipped, exept all linen in general, likes sheets and towels. -

CLEANING: The apartment is clean when handed and must be handed back in order.Coming out cleaning NOT included in the price.

On departure the electrical switches must be turned off and the refrigerator must be defrosted and left open.

DEPOSIT: about 30% of the rental price, 50% if for only one week. The deposit must be paid to the Agency within 10 days of the booking date.

BALANCE: to be paid on arrival, at the time of handing over the keys.

NOTIFICATION: at the handing over the keys, identification documents of ALL persons who are to be accomodated in the apartment must be given to the agency for the required notification to the autorithy concerned.

CANCELLATION: in no case will the deposit be returned and if the communication should arrive no more than one week from the expected date of arrival, the customer will be required to pay the full amount agreed for the rent.

ARRIVAL: Expected between 16:00 and 18:00.In the event of delay keys won't be handed over,unless previous agreements with the Agency

EARLY DEPARTURE: the rental price is stipulated for the fixed period and cannot be reduced in the event of early departure. It is not allowed to introduce domestic animals into the apartment without the consent of the lessor.

DAMAGE: damage or breakages, fillings of sinks or showers caused by the tenant during the period of stay must be reported to the agency so that it can provide for immediate restoration but also to assess the extent of the damage and any compensation.

WARNINGS: People must accept and respect the house rules and any kind of noise will be not allowed from 13:00 to 16:00 and from 23:00 to 08:00.The Agency must be informed of any damage/break. Complaints are to be done within 24 hours of arrival.

COMPLAINTS: deficiencies or deficiencies in the equipment, they must be reported to the Agency 24 hours after delivery of the keys. Posthumous claims will not be accepted. The parties authorize the disclosure of their personal data to third parties in relation to obligations connected to the rental relationship based on the DIGS. June 30, 2003 No. 196.